




치공구라 불리는 지그(Jig)와 고정 장치(Fixture), 그중에서 가장 기본이 되며, 도면해독을 처음 배울 때의 과제로 적합한 바이스(Vise)의 문제도와 도면 작업 전 과정에 대한 영상입니다.
총 5개의 영상이며 순서는 다음과 같습니다.
1) 바이스 1 - 전 부품 3D 모델링
2) 바이스 1 - 투상도 작도와 정리
3) 바이스 1 - 치수 기입
4) 바이스 1 - 공차의 적용
5) 바이스 1 - 주서와 재질, 3D 렌더링 등각 투상도 작도 방법, PDF 출력과 용지 출력
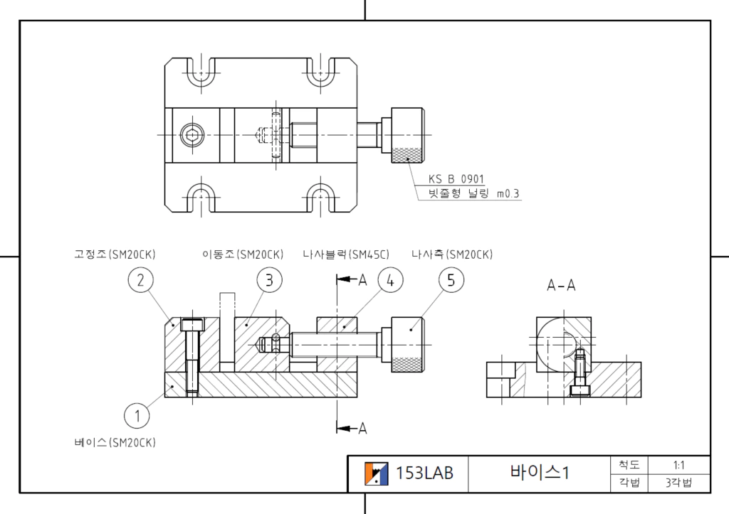
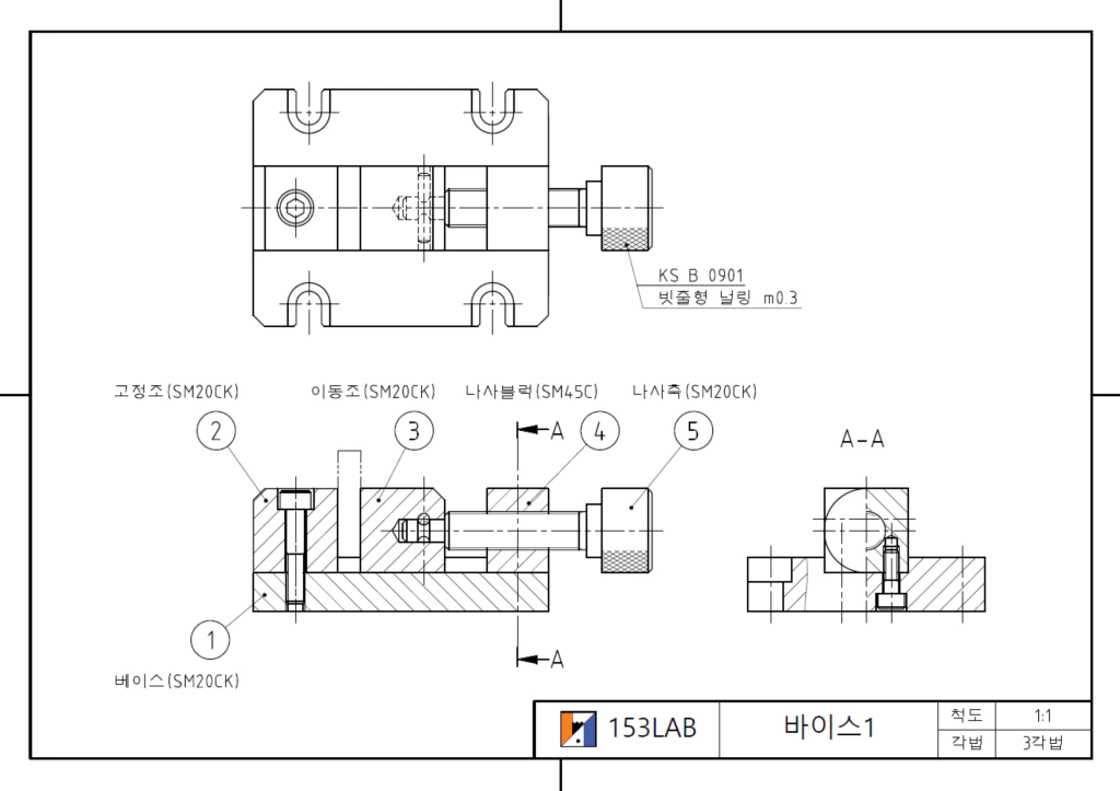
아래는 문제도 이미지이며, PDF 파일로 다운이 가능하니, 출력 시에 실제 크기(1:1)로 출력하시기 바랍니다.

치공구의 시작, 바이스 1 - 모델링부터 출력까지 전 과정 따라 하기
도면을 출력하여, 도면을 보면서 따라 하셔야 효과적인 연습이 됩니다. 하나하나 천천히 보시고 연습하세요. 기본이 잘 되어 있고, 이해가 된다면 시험에 합격하는 것은 어려운 일이 아닙니다.
자! 아래 영상을 하나하나 보시고 연습하세요
바이스 1 - 전 부품 3D 모델링
바이스 1 - 2. 투상도 작도 방법
바이스 1 - 3. 치수 기입
바이스 1 - 4. 공차의 적용
바이스 1 - 5. 주서와 재질, 출력
153LAB
'국가 기술 자격 CAD 실기 시험 > 기계 제도와 도면 해독' 카테고리의 다른 글
| V-벨트풀리 아이들러의 본체 모델링, 투상도, 치수 (1) | 2023.08.01 |
|---|---|
| 주철품과 주강품의 보통 치수 공차 (일반 공차) (0) | 2023.07.10 |
| 동력전달장치의 부품별 재질 선정 (0) | 2023.07.05 |
| 주물면과 가공면의 구분 (2) | 2023.07.03 |
| 투상도 작도와 치수 기입 방법 최종 - (3) 치수 기입 (1) | 2023.05.11 |
| 투상도 작도와 치수 기입 방법 - (2) 투상도 작도 (0) | 2023.05.10 |
| 투상도 작도와 치수 기입 방법 - (1) 모델링 (1) | 2023.05.09 |
| 테이퍼 축에 있는 키 홈의 국부 투상도 (1) | 2023.05.08 |