오토캐드에서 도면 출력하는 법은 크게 2가지가 있겠습니다.
▶ 첫 번째는 프린터로 바로 출력하는 방법
▶ 두 번째는 PDF로 저장 후, PDF 뷰어에서 출력하는 방법
보통 국가 기술 자격 CAD 실기 시험에서는 검도의 목적과 출력 오류 방지를 목적으로 PDF로 저장 후 출력하는 것을 권합니다. 이번 포스팅에서는 PDF 출력 방법에 대해 위주로 알아보겠습니다. 직접 출력하는 방법은 PDF 출력 방법에서 옵션 2개 (프린터와 용지 설정)만 변경하면 됩니다.
※ 마지막에 설명합니다.
1. 작업 파일 검도
2D 부품도와 3D 렌더링 등각 투상도, 모두 작업을 하고, 충분한 검도를 한다.

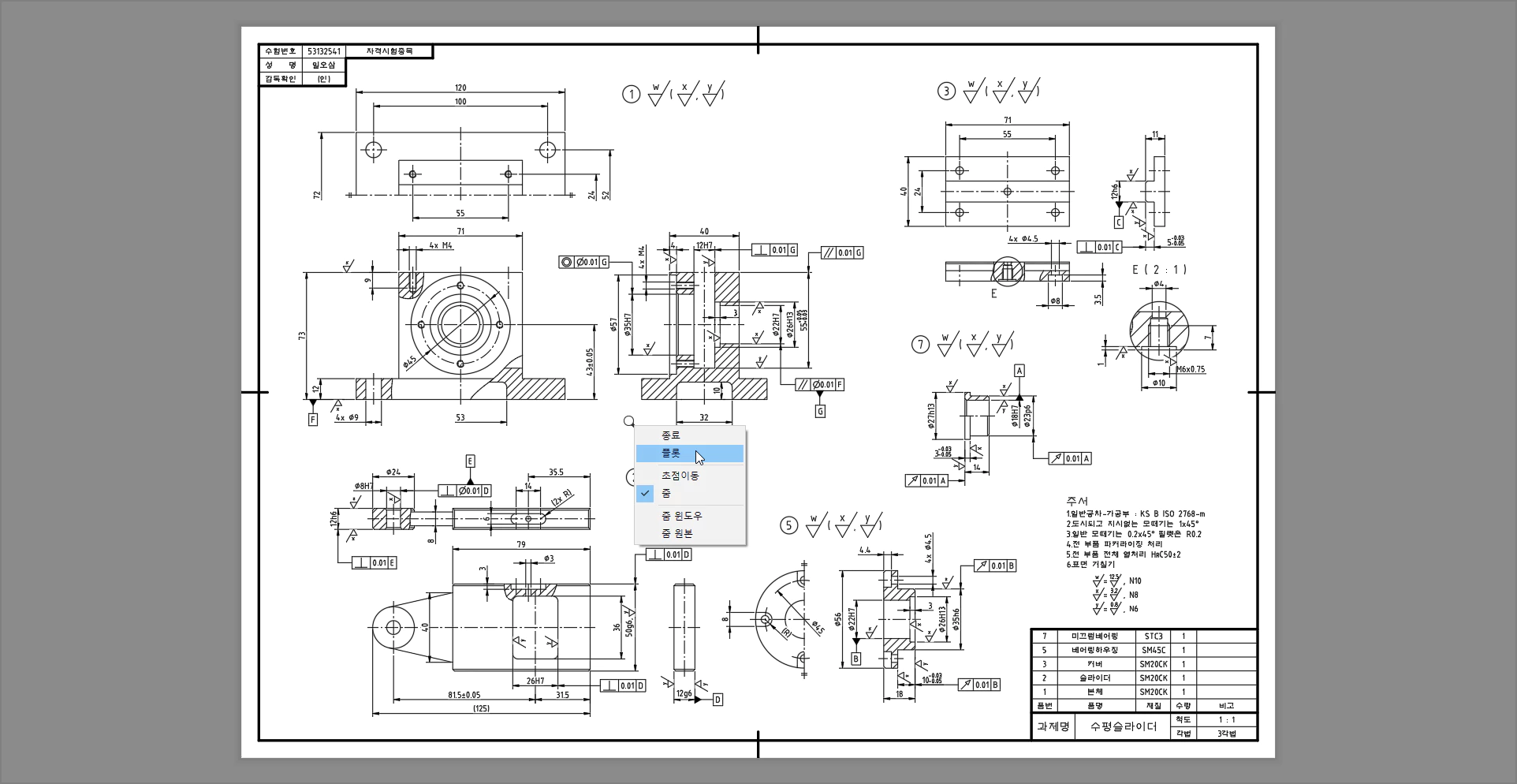
2. 플롯 (Plot) 클릭
또는 Ctrl + P

3. 플롯의 옵션
왼쪽 위에 [프린터/플로터]에서부터 반 시계 방향으로 화살표 방향대로 옵션을 설정하면 된다.

① 프린터 / 플로터
DWG To PDF를 선택한다.

② 용지 크기
용지는 ISO 전체 페이지 A3를 (420x297 또는 297x420) 선택한다.

③ 플롯 영역
윈도우로 설정하면, 대화상자가 사라지고, 인쇄를 위한 도면 상의 직사각형 범위를 지정하게 된다. (윈도우 선택)
도면의 한계선 (캐드 도면의 자주색 직사각형)을 지정해주면 된다.


④ 플롯 간격 띄우기 (출력의 위치)
플롯 중심에 체크한다.
용지의 정 중앙에 배치된다.

⑤ 플롯 축척 (출력의 크기)
용지에 맞춤에 체크한다.
실제 크기에 비례한 값이 아니라 설정한 도면 용지에 꽉 차게 출력된다.

⑥ 도면 방향 (출력의 방향)
가로에 체크한다.
출력 방향과 용지의 방향이 같아 진다.

⑦ 플롯 스타일 테이블
색상에 따른 출력될 선의 색상과 굵기를 설정한다. 파일로 저장되며, 언제든 다시 쓸 수 있으나, 시험 준비하는 기간이라면 매회 연습 때마다 새로 설정하여 출력하는 연습을 하도록 하자.
a) 새로 만들기

b) 처음부터 시작

c) 플롯 스타일 테이블 이름 입력

d) 플롯 스타일 테이블 편집기 클릭
상세 설정을 위해 편집기 버튼을 클릭한다.

e) 선의 색상에 대한 출력 색상과 굵기 설정
아래와 같이 편집기를 보면 왼쪽 색상은 도면에서 작업한 선의 색상이고, 오른쪽 설정은 각각의 색상에 대한 출력 옵션이 된다. 우리는 색상 하나당 출력 색상(C)과 선가중치(W), 2개만 변경해 주면 된다.

실무에서라면 회사에서 사용하는 선의 굵기를 사용하면 되며, 국가 기술 자격 CAD 시험에서는 아래 색상 순서대로 빨간색이 가는 선, 노란색이 중간굵기, 초록색이 굵은 선, 하늘색과 파란색이 가장 굵은 선이다.
색상 1 < 색상 2 < 색상 3 <색상 4
빨간색 < 노란색 < 초록색 < 하늘색 또는 파란색
전산응용기계제도기능사, 기계설계산업기사 아래와 같고,

일반기계기사는 아래와 같다.

※여기에서는 가는 선을 전산응용기계제도기능사, 기계설계산업기사에 맞추고, 일반기계기사는 위의 색상과 굵기를 같은 방법으로 작업하면 된다.
모든 색상은 검은색으로 출력되어야 하고, 굵기 중에 가장 가는 선의 굵기가 가장 많이 쓰이므로, 색상 1~색상 7까지 Shift + 마우스 왼쪽 버튼으로 클릭하여 모두 선택한 후, 색상(C)은 검은색, 굵기인 선가중치(W)는 0.18mm 준다.
※ 색상 7이 도면에서 흰색이며, 오토캐드는 흰색과 검은색의 번호가 같은 7이다.

모두 검은색과 0.18mm가 되었으니 이제 노란색, 초록색, 하늘색 순서대로 굵기만 변경하면 된다.

초록색을 클릭하고 0.35mm 적용한다.

하늘색을 선택하고, 0.7mm 적용한다.

f) 저장 및 닫기와 마침

⑧ 미리 보기
미리보기 버튼을 클릭한다.

⑨ 플롯
마우스 우클릭하여 플롯 버튼을 클릭하여 플롯 한다.

⑩ PDF 파일 이름

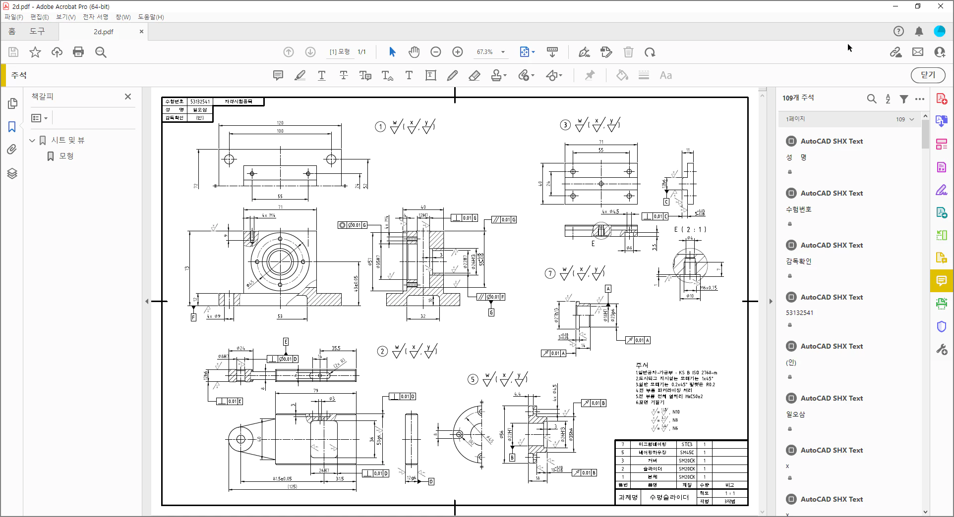
⑪ 2D 도면 PDF 완성

⑫ 3D 도면의 출력
플롯 버튼이나 Ctrl + P 클릭

⑬ 이전 플롯
페이지 설정에서 이전 플롯을 클릭한다.
이전에 정상적으로 출력 시 설정되어 있는 모든 설정값들이 저장되어 있다.

⑭ 윈도우 지정 후 플롯
플롯 영역의 [윈도우]로 지정 후, 미리 보기 한 후에 플롯을 눌러 출력한다.

⑮ 3D 도면 PDF 완성

4. 종이 출력 방법
PDF 출력 방법과의 차이는 프린터/플로터에 실제 프린터 이름을 설정하고, 출력 용지만 선택해 주면 된다.

153LAB
PDF 제작 후 PDF 뷰어에서 도면 출력하는 방법은 아래 게시글을 참고하세요
PDF 뷰어에서 도면 출력 방법
도면 작업의 마지막 중요 과제인 '출력'에 대해서 알아보도로 하겠습니다. 인벤터에서 PDF 내보내기 방법은 아래 링크를 참고하시기 바랍니다. 인벤터에서 PDF 내보내기 방법과 옵션 인벤터에서 P
153lab.com
'국가 기술 자격 CAD 실기 시험 > 오토캐드 템플릿(dwg)' 카테고리의 다른 글
| 자격시험용 오토캐드 템플릿 만들기 ( 4 ) - 주서 (0) | 2022.08.05 |
|---|---|
| 자격시험용 오토캐드 템플릿 만들기 ( 3 ) - 표면거칠기 기호, 품번기호와 대표 (일부) 표면거칠기, 대칭도시기호 만들기 (0) | 2022.08.05 |
| 자격시험용 오토캐드 템플릿 만들기 ( 2 ) - 그리기 : 윤곽선, 중심마크, 표제란, 부품란, 수검란 (0) | 2022.08.05 |
| 자격 시험용 오토캐드 템플릿 만들기 ( 1 ) - 설정: 레이어설정, 치수스타일, 문자스타일 설정 (일반기계기사, 기계설계산업기사, 전산응용기계제도기능사) (0) | 2022.08.05 |